TRENTAMETRIQUADRI

Micro-living: L'arte dell'essenziale

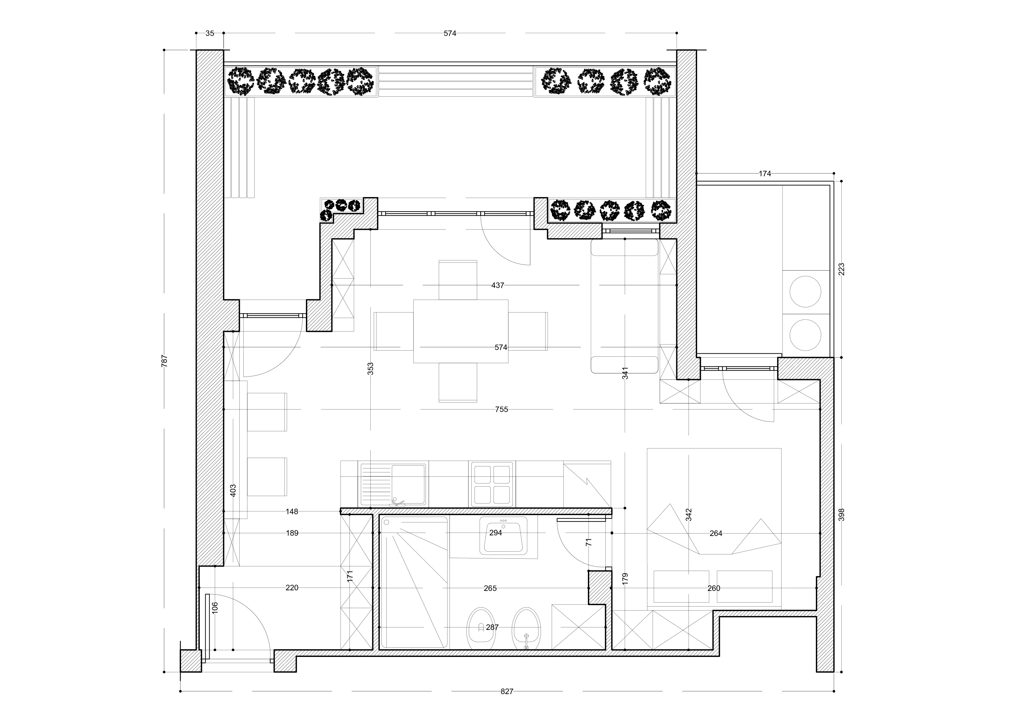
Vivere in 30 metri quadri non è una limitazione, ma un'opportunità di precisione architettonica. Questo progetto esplora il concetto di micro-living urbano attraverso la modularità e la ricerca materica. In un'epoca in cui lo spazio diventa il bene più prezioso, TRENTAMETRIQUADRI propone una visione dove la qualità del dettaglio e la funzionalità intelligente superano la necessità di grandi superfici.

Ogni centimetro è stato analizzato per massimizzare la percezione dell'ampiezza. L'utilizzo di pareti attrezzate a tutta altezza permette di celare le funzioni domestiche quando non necessarie, mantenendo un ordine visivo assoluto. La palette cromatica, dominata dai toni caldi del rovere chiaro e dalla purezza delle superfici bianche, cattura e amplifica la luce naturale proveniente dalle grandi vetrate, rendendo l'ambiente vibrante e accogliente.

Il cuore dell'intervento è la zona living multifunzionale, capace di trasformarsi in pochi gesti da spazio per la convivialità a ufficio domestico o zona notte privata. La scelta di materiali naturali e finiture opache sottolinea un approccio sensoriale al design, dove il contatto con la materia arricchisce l'esperienza quotidiana. La precisione dei giunti e l'integrazione degli impianti testimoniano un approccio sartoriale alla costruzione.

Il risultato è un'abitazione fluida e dinamica, un manifesto di come il design contemporaneo possa risolvere le sfide della densità urbana senza rinunciare al lusso della bellezza e del comfort. TRENTAMETRIQUADRI non è solo un appartamento, ma un nuovo paradigma dell'abitare consapevole.

Tesi di Laurea Triennale in Design presso RUFA (Rome University of Fine Arts), Anno accademico 2023/2024. Relatore: Prof. Giuseppe Ragosta.